Aller à :

  • Aller à la recherche
  • Aller au menu principal
  • Aller au contenu
0
  • Accueil
  • Programmes neufs
    • Projet
    • Lancement
    • En cours
    • Quelques réalisations
  • Locations
    • Maisons
    • Appartements
    • Autres
  • Gestion locative
  • Transactions
    • Maisons
    • Appartements
    • Terrains
    • Autres
  • Qui sommes-nous ?
  • Nous contacter
0
VotreRecherche
Dans un rayon de
  1. Accueil
  2. Vente
  3. Rhone
  4. Craponne
  5. Appartement
  6. T3
  7. T3 au dernier etage
Coup de coeur
Réf : 421
Appartement
T3 au dernier étage
Nombre de pièces 3
Nombre de chambres 2
Nombre de salles de bain 1
295 000 €

T3 au dernier étage Craponne (69290)

APPARTEMENT VENDU Loué

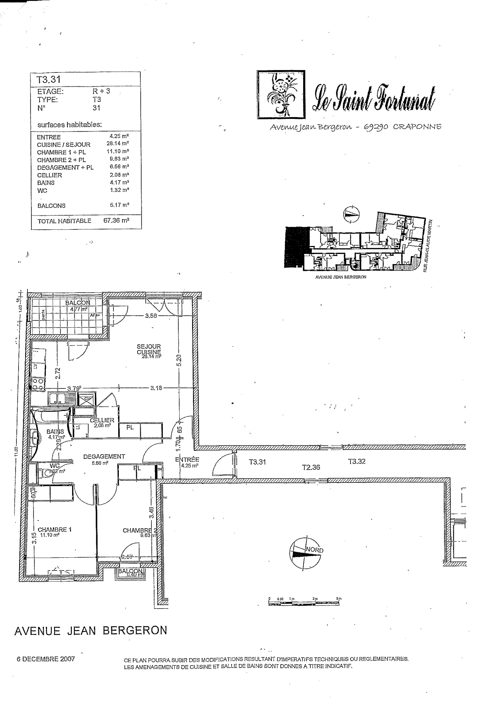
Sur la commune de CRAPONNE, bel appartement de 3 pièces principales situé au 3ème et dernier étage avec ascenseur, d'une surface habitable de 67,36 m² + un balcon plein sud avec une belle vue sur les Monts du Lyonnais, composé d'une entrée, d'un séjour + coin cuisine entièrement équipée, de 2 chambres avec placard, d'une salle de bains (baignoire), toilettes séparées - Chauffage inviduel au Gaz - Ce logement s'accompagne d'une place de parking privé en sous-sol fermée.

Prix de vente : 295 000 €.


Les informations sur les risques auxquels ce bien est exposé sont disponibles sur le site Géorisques
  • Général
  • Détails +
  • Copropriété
  • Financier
  • DPE
Caractérisque Valeurs
Code postal 69290
Surface habitable (m²) 67,36 m²
Surface loi Carrez (m²) 67,36 m²
Nombre de chambre(s) 2
Nombre de pièces 3
Etage 3
Ascenseur OUI
Caractérisque Valeurs
Nb de salle de bains 1
Mode de chauffage Gaz
Type de chauffage TRAD_TYPE_CHAUFF_CHAUDIERE
Format de chauffage Individuel
Interphone OUI
Balcon OUI
Année de construction 2008
Quartier ouest lyonnais
Caractérisque Valeurs
Copropriété OUI
Lot n° 16
nombre de lots 50
Quote Part annuelle des charges 1 200 €
Caractérisque Valeurs
Prix de vente 295 000 €
Les honoraires d'agence seront intégralement à la charge du vendeur  
Taxe foncière annuelle 885 €
DPE GES
Cette offre
vous intéresse

* champs obligatoires

Les informations recueillies sur ce formulaire sont enregistrées dans un fichier informatisé par La Boite Immo agissant comme Sous-traitant du traitement pour la gestion de la clientèle/prospects de l'Agence / du Réseau qui reste Responsable du Traitement de vos Données personnelles. La base légale du traitement repose sur l'intérêt légitime de l'Agence / du Réseau. Elles sont conservées jusqu'à demande de suppression et sont destinées à l'Agence / au Réseau. Conformément à la loi « informatique et libertés », vous disposez des droits d’accès, de rectification, d’effacement, d’opposition, de limitation et de portabilité de vos données. Vous pouvez retirer votre consentement à tout moment en contactant directement l’Agence / Le Réseau. Consultez le site https://cnil.fr/fr pour plus d’informations sur vos droits. Si vous estimez, après avoir contacté l'Agence / le Réseau, que vos droits « Informatique et Libertés » ne sont pas respectés, vous pouvez adresser une réclamation à la CNIL. Nous vous informons de l’existence de la liste d'opposition au démarchage téléphonique « Bloctel », sur laquelle vous pouvez vous inscrire ici : https://www.bloctel.gouv.fr Dans le cadre de la protection des Données personnelles, nous vous invitons à ne pas inscrire de Données sensibles dans le champ de saisie libre.
Ce site est protégé par reCAPTCHA, les Politiques de Confidentialité et les Conditions d'Utilisation de Google s'appliquent.

Partager le bien
Nos outils
Imprimer Imprimer
Calculatrice financière

* Champ obligatoire

Partager l'annonce

* champs obligatoires

Les informations recueillies sur ce formulaire sont enregistrées dans un fichier informatisé par La Boite Immo agissant comme Sous-traitant du traitement pour la gestion de la clientèle/prospects de l'Agence / du Réseau qui reste Responsable du Traitement de vos Données personnelles. La base légale du traitement repose sur l'intérêt légitime de l'Agence / du Réseau. Elles sont conservées jusqu'à demande de suppression et sont destinées à l'Agence / au Réseau. Conformément à la loi « informatique et libertés », vous disposez des droits d’accès, de rectification, d’effacement, d’opposition, de limitation et de portabilité de vos données. Vous pouvez retirer votre consentement à tout moment en contactant directement l’Agence / Le Réseau. Consultez le site https://cnil.fr/fr pour plus d’informations sur vos droits. Si vous estimez, après avoir contacté l'Agence / le Réseau, que vos droits « Informatique et Libertés » ne sont pas respectés, vous pouvez adresser une réclamation à la CNIL. Nous vous informons de l’existence de la liste d'opposition au démarchage téléphonique « Bloctel », sur laquelle vous pouvez vous inscrire ici : https://www.bloctel.gouv.fr Dans le cadre de la protection des Données personnelles, nous vous invitons à ne pas inscrire de Données sensibles dans le champ de saisie libre.
Ce site est protégé par reCAPTCHA, les Politiques de Confidentialité et les Conditions d'Utilisation de Google s'appliquent.

Détail des diagnostics énergétiques
DPE GES

Montant estimé des dépenses annuelles d'énergie de ce logement pour un usage standard est compris entre 830 € et 1 170 € . 2022 étant l'année de référence des prix de l'énergie utilisés pour établir cette estimation.

Partager avec vos proches

Facebook Facebook
Messenger Messenger
Twitter Twitter
WhatsApp WhatsApp
LinkedIn LinkedIn
Copier le lien Copier le lien
Contacter
l'agence

Remplissez ce formulaire, nous ferons de notre mieux pour vous répondre dans les meilleurs délais.

RHONE IMMOBILIER
04 78 57 46 97
E-mail contact@r-immobilier.com

100 Bis Avenue Pierre Dumond 69290 Craponne

TRAD_MELTEM_voscoordonnees
TRAD_MELTEM_voredemande
Règlementation

* Champ obligatoire

Les informations recueillies sur ce formulaire sont enregistrées dans un fichier informatisé par La Boite Immo agissant comme Sous-traitant du traitement pour la gestion de la clientèle/prospects de l'Agence / du Réseau qui reste Responsable du Traitement de vos Données personnelles. La base légale du traitement repose sur l'intérêt légitime de l'Agence / du Réseau. Elles sont conservées jusqu'à demande de suppression et sont destinées à l'Agence / au Réseau. Conformément à la loi « informatique et libertés », vous disposez des droits d’accès, de rectification, d’effacement, d’opposition, de limitation et de portabilité de vos données. Vous pouvez retirer votre consentement à tout moment en contactant directement l’Agence / Le Réseau. Consultez le site https://cnil.fr/fr pour plus d’informations sur vos droits. Si vous estimez, après avoir contacté l'Agence / le Réseau, que vos droits « Informatique et Libertés » ne sont pas respectés, vous pouvez adresser une réclamation à la CNIL. Nous vous informons de l’existence de la liste d'opposition au démarchage téléphonique « Bloctel », sur laquelle vous pouvez vous inscrire ici : https://www.bloctel.gouv.fr Dans le cadre de la protection des Données personnelles, nous vous invitons à ne pas inscrire de Données sensibles dans le champ de saisie libre.
Ce site est protégé par reCAPTCHA, les Politiques de Confidentialité et les Conditions d'Utilisation de Google s'appliquent.

Se connecter
Espace propriétaire

© 2026 | Tous droits réservés | Traduction powered by Google |

  • Nos honoraires
  • Plan du site
  • Mentions légales
  • Admin
  • Nos liens
  • Politique RGPD

Comme beaucoup, notre site utilise les cookies

On aimerait vous accompagner pendant votre visite. En poursuivant, vous acceptez l'utilisation des cookies par ce site, afin de vous proposer des contenus adaptés et réaliser des statistiques !

Paramétrer

Cookies fonctionnelsCes cookies sont indispensables à la navigation sur le site, pour vous garantir un fonctionnement optimal. Ils ne peuvent donc pas être désactivés.

Statistiques de visitesPour améliorer votre expérience, on a besoin de savoir ce qui vous intéresse !
Les données récoltées sont anonymisées.

?

Google Analytics

En savoir plus